Listing provided courtesy of LILI QIAN of PACIFIC STERLING REALTY. Last updated . Listing information © 2025 Sandicor.
Asking Price: $699,990 |
642 Grand Avenue, Pomona CA 91766
Community:
This Residential property was built in 2024 and is priced at $699,990. Please see the additional details below.
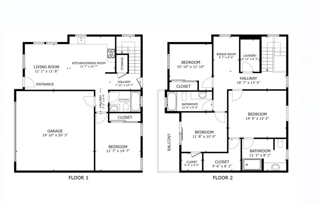
Welcome Home to Grand Villas! Modern Living Meets Natural Beauty 9 New Detached 2 Stories Homes Beside iconic Madison Park! Each residence features 4 spacious bedrooms, 3 modern bathrooms, a spacious loft and a 2-car attached garage. The home offers an open and functional layout with one bedroom and a full bathroom conveniently located on the first floor. The interiors showcase premium upgrades throughout, including beautiful vinyl wood-like flooring downstairs, quartz countertops in the kitchen, and a bright, contemporary design. Upstairs, youll find three additional bedrooms and two bathroom, including a luxurious primary suite with walk-in closet, plus a convenient laundry room, a generous loft and large private Balcony. Enjoy a private backyard perfect for relaxing or entertaining. this home combines comfort, style, and convenience in one beautiful package. Best of all, youre just steps away from Madison Park, Top-rated schools, shops, and dining are all within minutes, Super FWY access. Come live the lifestyle you deserveat Grand Villas.






























































