1170 Lugo, San Bernardino CA 92410 for sale - Presented to you by Terrence Griffin of San Diego California
Listing provided courtesy of Juliny Barajas of Windermere Real Estate. Last updated 2025-10-13 08:20:05.000000. Listing information © 2025 Sandicor.

Asking Price: $969,500 | ​​​​​​​

1170 Lugo, San Bernardino CA 92410

Community: ​274 - San Bernardino


This Single Family Residence property was built in 2025 and is priced at $969,500. Please see the additional details below.
  • 1,200 Sq Ft
  • 4 bathrooms
  • 6 bedrooms
  • MLS#: 219136831DA
  • Type: Single Family Residence
  • Year Built: 2025
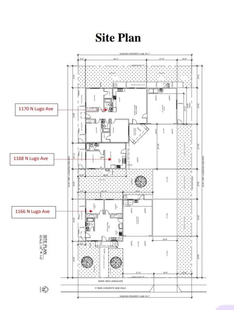
Brand new 2025 construction with amazing income potential! This beautifully designed residential home includes two additional permitted units -- each with its own address, gas, and electric meter -- offering incredible flexibility for multi-generational living or rental income opportunities.The main home (1170 N Lugo Ave) features 3 bedrooms and 2 bathrooms with a modern open layout and high-quality finishes. The attached JADU (1168 N Lugo Ave) offers 1 bedroom and 1 bathroom, perfect for extended family or a private guest suite. The detached ADU (1166 N Lugo Ave) includes 2 bedrooms and 1 bathroom with its own entry and yard space.All units are separately metered and currently rented month-to-month, providing strong income potential for both investors and owner-occupants. Live in one and rent the others, or enjoy steady cash flow from day one.Whether you're a first-time home buyer looking to offset your mortgage or an investor seeking a new, turn-key property, this is the one you've been waiting for. Modern design, separate meters, and instant income -- all in a brand-new 2025 build! Se Habla Espanol!

Call or Email Terrence Griffin now to inquire about this property

619-952-0152