Listing provided courtesy of Susan Harvey of Desert Pacific Properties. Last updated 2026-03-29 08:24:16.000000. Listing information © 2025 Sandicor.
Asking Price: $8,246,500 |
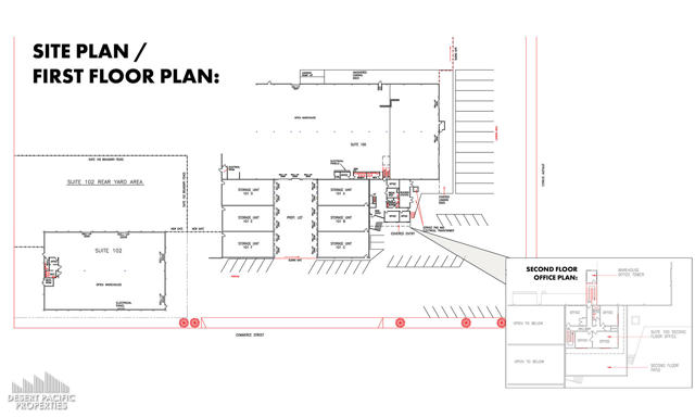
45585 Commerce St, Indio CA 92201
Community: 699 - Not Defined
This property was built in 1970 and is priced at $8,246,500. Please see the additional details below.
Approx. 66,116 SF warehouse/office facility on 4.46 acres. Property includes two large open warehouse areas, ten fully air conditioned offices, break room, four restrooms, six storage units, 23 roll-up doors, loading area, covered loading dock, uncovered loading dock, and secure fenced yard space. Property can be utilized as a singular warehouse/office or multi-tenant facility. Join Quinn CAT Construction Equipment, FIND Food Bank, U.S. Border Patrol, AmeriGas, Desert Arc, and more! Ideally positioned with easy access just one-half mile from I-10 freeway. In the federally qualified Opportunity Zone. Great for owner-user or investment purposes. New roof installed in 2022. ** Call Susan Harvey at (760) 250-8992 or Emily Harvey at (760) 636-3500 to set up an appointment to view the property. **




























































