Listing provided courtesy of Valerie Tavares of Tavares Realty. Last updated 2025-11-02 08:21:51.000000. Listing information © 2025 Sandicor.
Asking Price: $2,500,000 |
41997 Via San Gabriel, Fremont CA 94539
Community:
This Single Family Residence property was built in 1963 and is priced at $2,500,000. Please see the additional details below.
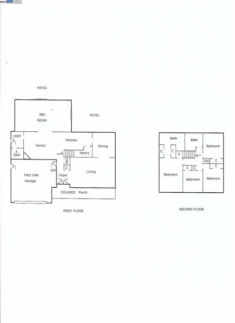
Located in the desirable Mission San Jose neighborhood within one half mile radius of Chadbourne Elementary, Hopkins Jr High and Mission San Jose Highschool. View of the hills from spacious front porch. Large additional rec room with vaulted ceiling, and ceiling fans, perfect for entertaining and gatherings. New Luxury Vinyl Plank Flooring throughout downstairs and all bathrooms. New carpet in all four bedrooms. Fresh interior and exterior paint. New Lighting throughout. New oven, dishwasher, and microwave. Spacious pantry in kitchen. Newer concrete on driveway, sidewalks and back patio. Low maintenance yards. Section One Termite Clearance. Close vicinity to I-680, BART, Parks, Trails, Mission Peak, Ohlone College, and shopping.






























