Listing provided courtesy of James Dienes of Redfin Corporation. Last updated 2026-03-28 08:10:43.000000. Listing information © 2025 Sandicor.
Asking Price: $950,000 |
4318 Mesquite, Palm Springs CA 92264
Community: 334 - South End Palm Springs
This Single Family Residence property was built in 1972 and is priced at $950,000. Please see the additional details below.
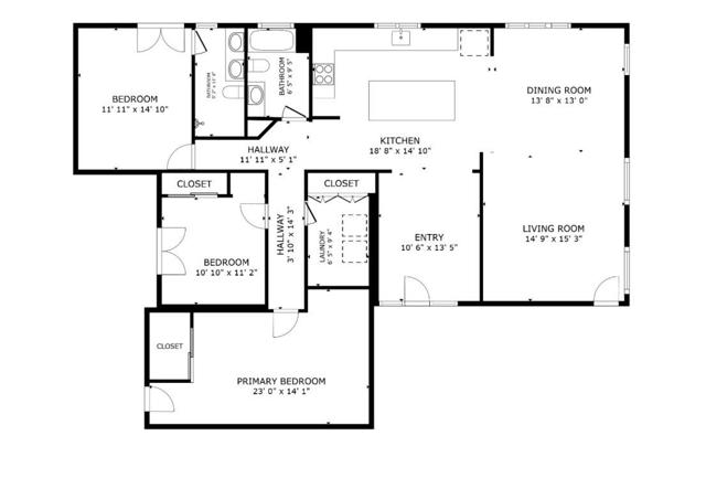
Discover your dream home in this beautifully renovated, 3-bedroom, 2-bath pool oasis. Featuring exceptional curb appeal, mountain views, an attached 2-car garage, and a spacious semi-circle driveway, this house is ready to welcome you. Step inside through double glass doors into a formal entryway with built-in shelving, leading to a modern kitchen with a central island, bar seating, custom tile backsplash, white cabinetry, and stainless steel appliances. The open floor plan seamlessly connects the kitchen to a dining area with access to the backyard and a large living room, complete with an entertainer's built-in dry bar featuring Palm Springs signage. Retreat to the luxurious primary suite at the end of the hall, offering double glass doors to the backyard and a spa-like ensuite with dual sinks, custom tile floors, 3D tile walls, and a walk-in shower. The additional two bedrooms and a full hall bathroom, all boasting custom tile finishes, provide comfort and style. The entertainer's backyard is your personal paradise, with a deep in-ground heated pool (newer pool pump with Smart auto-fill technology), a custom built-in firepit, a heavy-duty aluminum frame pergola with a private screen for relaxation, a combination of concrete and turf, and breathtaking mountain views. Conveniently located near shopping, dining, parks, golf, and all the best of Palm Springs, this masterpiece is waiting for you to tour and make it your own. Don't miss the chance to claim this stunning home!











































