Listing provided courtesy of Ixie Weber of Redfin Corporation. Last updated 2026-03-27 08:15:17.000000. Listing information © 2025 Sandicor.
Asking Price: $449,900 |
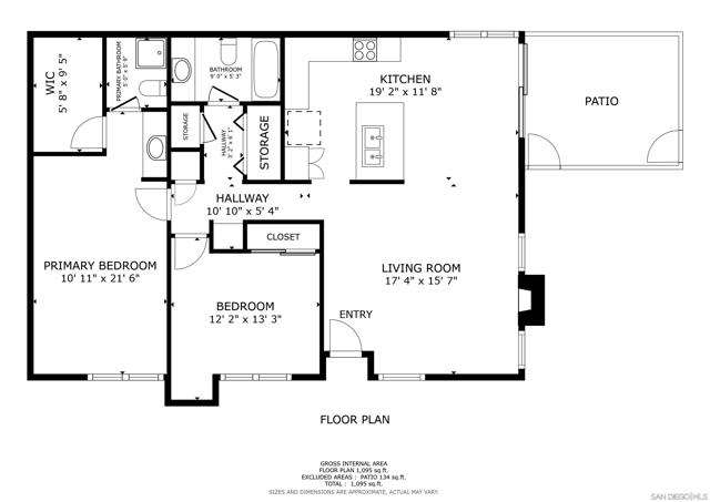
317 Melrose Dr Unit G, Vista CA 92083
Community: 92083 - Vista
This Condominium property was built in 1981 and is priced at $449,900. Please see the additional details below.
Spacious and well-maintained ground-floor corner unit offering two bedrooms, two full bathrooms, and a wide-open floor plan filled with natural light. Fresh paint throughout, soaring vaulted ceilings, and a cozy fireplace create a warm, inviting atmosphere across 1,172 square feet of comfortable living space. The living room and hallway feature newer laminate flooring, while both bedrooms have brand-new carpet for a fresh, move-in-ready feel. New blinds on all windows enhance privacy and style. The beautifully updated kitchen showcases quartz countertops, crisp shaker cabinetry, and a brand-new gas range, making it both functional and stylish. Bathrooms have also been refreshed with new shaker cabinets and quartz countertops. Enjoy the convenience of in-unit laundry and a quiet, well-situated location within the community. Step outside to your private patio, the perfect spot to unwind with your favorite beverage and enjoy the year-round coastal climate. A one-car detached garage plus an additional assigned parking space add everyday convenience. Residents of Melrose Park enjoy resort-style amenities including sparkling pools and a sport court. Ideally located just minutes from vibrant Vista Village, offering cafes, boutiques, Wave Waterpark, and entertainment, with quick freeway access for easy commuting. This is a must-see home!
































