Listing provided courtesy of Hank Farzaneh of Bay Area Real Estate Services. Last updated 2026-02-06 09:17:59.000000. Listing information © 2025 Sandicor.
Asking Price: $2,888,000 |
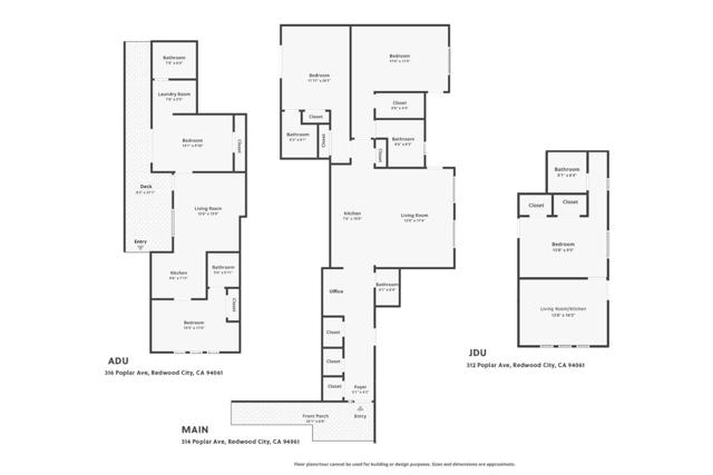
314 Poplar, Redwood City CA 94061
Community: 699 - Not Defined
This Single Family Residence property was built in 1917 and is priced at $2,888,000. Please see the additional details below.
Rare opportunity to own a single family home with two ADUs. Great income property! Totally rebuilt construction in the Heart of Silicon Valley. Exceptional opportunity to own a newly built property in one of Redwood City"s fastest-growing neighborhoods. This versatile and thoughtfully designed property features three separate living units, making it ideal for multi-generational living or an owner-occupant looking to generate rental income. The main residence offers approximately 1,350 sq ft 2 bedrooms and 2.5 bathrooms. In addition, there is an ADU with 2-bedroom, 2-bath approximately 750 sq ft, and a JADU with 1-bedroom, 1-bath approximately 425 sq ft. Each unit consists of a full kitchen and separate laundry . Each bedroom has it's full bathroom, providing privacy and convenience throughout. The homes showcase modern design, 10-foot ceilings, and hardwood flooring throughout. All units are equipped with energy-efficient heat pump HVAC systems and heat pump water heaters, offering year-round comfort and sustainability. Perfect for a large family, multi-generational living, or an investor who wants to live in one unit while renting the others.



















































