Listing provided courtesy of Cory Chen of KW Advisors. Last updated 2026-02-06 09:17:59.000000. Listing information © 2025 Sandicor.
Asking Price: $1,679,000 |
220 Waters Park #304, San Mateo CA 94403
Community: 699 - Not Defined
This Condominium property was built in 2022 and is priced at $1,679,000. Please see the additional details below.
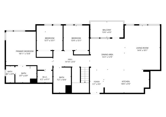
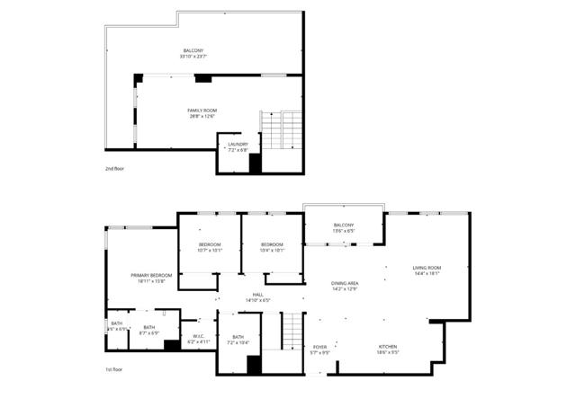
Spacious 3 bedroom, 2 bathroom top floor, corner unit condiminium in the stunning Waters Park Circle development. Spanning 1,912 square feet, this residence offers a perfect blend of comfort and practicality. On the re-sale market for the first time. The kitchen is well-equipped with a cooktop, electric appliances including a dishwasher, garbage disposal, and refrigerator. The open floorplan has a livingroom, kitchen combo with a deck/patio on the main floor as well as a corner wrap around deck patio above with views of the San Mateo Hills. A large load washer and dryer, along with a spacious 2-car side by side garage can fit most large vehicles with a best in building turn around space. An in building elevator makes it a breeze to access your unit. Solar panels on top of the unit and separate heat and AC units per room allow for maximum efficiency. True gem of the neighborhood! Conveniently located close to 92 and 101 and a block from a bus line for any commute!





























