Listing provided courtesy of Derek Wood of Re/Max Freedom. Last updated 2026-03-27 08:15:17.000000. Listing information © 2025 Sandicor.
Asking Price: $700,000 |
30260 Gremlin, Running Springs CA 92382
Community: 288 - Running Springs
This Single Family Residence property was built in 1987 and is priced at $700,000. Please see the additional details below.
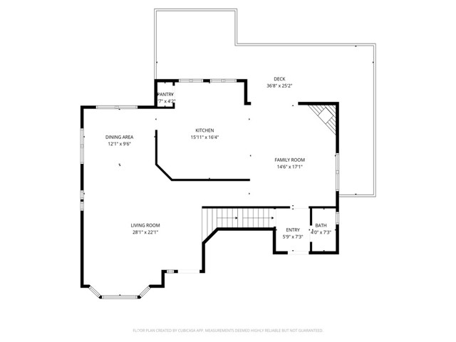
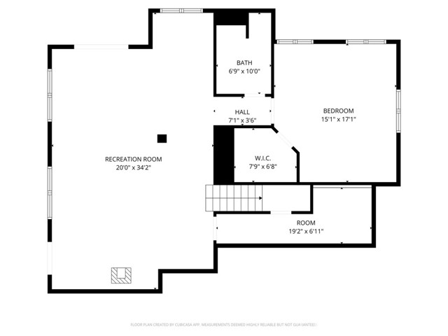
Set on a quiet cul-de-sac in the Enchanted Forest neighborhood of Running Springs, this fully turn-key mountain home delivers rare privacy and immersive forest views across all three levels. Thoughtfully renovated, it pairs clean contemporary finishes with warm mountain character in a setting that feels both secluded and refined.
The kitchen is a true showpiece, designed for both daily living and entertaining. It features a 48” black stainless steel ZLINE professional-grade range and matching appliances, a 45” Kraus workstation trough sink, brushed brass fixtures, a pot filler, and an appliance garage with built-in electrical. Dolomite and Black Mist honed granite extend across the countertops and full backsplash, complemented by flat-panel European rift white oak cabinetry and a striking 8-foot island with double-sided black cabinetry.
Living spaces are warmed by three fireplaces, including wood-burning and gas fireplaces in the family room and primary suite, plus an electric fireplace in the game room. The game room is theater-ready with surround sound, a floating entertainment center, a bar/kitchenette, dual wine refrigerators, and custom wine storage.
All four bathrooms have been fully renovated, while recent whole-home upgrades include new LVP flooring, fresh interior and exterior paint, updated lighting throughout, and new door hardware.
Outdoor living is equally compelling, with multiple decks, a private spa, garden beds, and a charming chicken coop. Confidence-inspiring improvements include two laundry areas, a full-house generator, new electrical panels, a brand-new water heater, and an upgraded central air system.
Ideally located near Lake Arrowhead, Green Valley Lake, Big Bear, and Snow Valley Ski Resort, this is a polished, move-in-ready Enchanted Forest retreat. Designed for comfort, reliability, and year-round mountain living.

























































