Listing provided courtesy of Melissa Radtke of Real Estate Experts ERA Powered. Last updated 2026-02-06 09:17:59.000000. Listing information © 2025 Sandicor.
Asking Price: $2,499,888 |
371 Oakwood, Redwood City CA 94061
Community: 699 - Not Defined
This Single Family Residence property was built in 1950 and is priced at $2,499,888. Please see the additional details below.
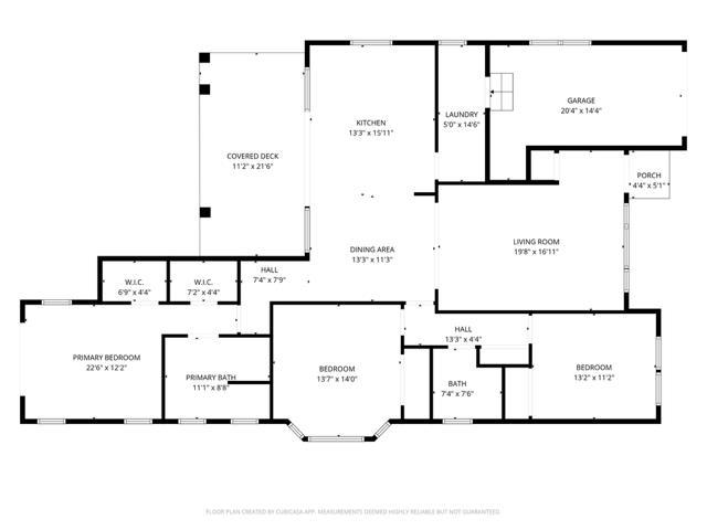
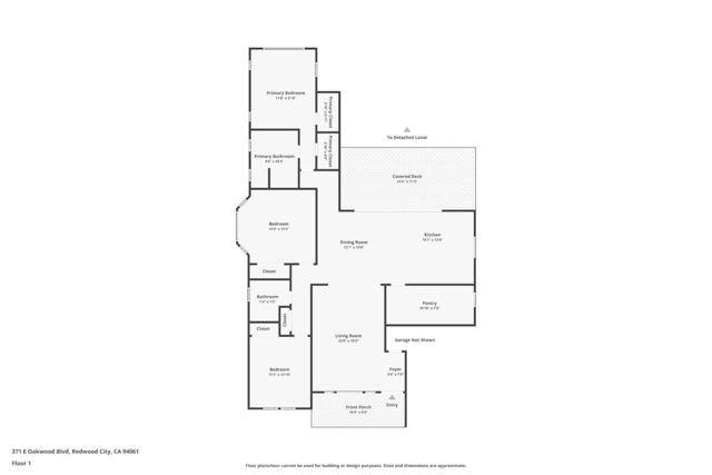
Discover 371 E Oakwood Boulevard, an extensively upgraded and thoughtfully expanded residence offering 3 bedrooms, 2 bathrooms, plus a newly built detached cabana of approximately 220 sq ft with electric power and a four-panel bi-fold sliding door for flexible, multi-use living. The home showcases elevated interior finishes including white oak flooring, smooth level-5 walls, designer lighting, and curated stone and tile details throughout. The kitchen is well-appointed with semi-custom cabinetry and premium appliances, while the bedroom spaces are complemented by custom walk-in closets and built-in storage solutions. Significant value-add upgrades include a new Daikin HVAC heat pump, full electrical rewire with added sub-panel and EV charger, and all-new copper plumbing. Exterior enhancements feature modern black-framed windows and doors, a custom pivot entry, updated stucco with stone accents, Trex decking, and refreshed landscaping and fencing. Ideally located near Highway 101, I-280, El Camino Real, and Caltrain, with convenient access to Downtown Redwood City, major Peninsula employers, parks, and everyday amenities, this property offers a prime Peninsula address and the opportunity for long-term enjoyment and value in one of Redwood Citys most sought-after neighborhoods.





























































