Listing provided courtesy of Darren Shack of Pinnacle Estate Properties, Inc.. Last updated 2026-03-03 09:13:30.000000. Listing information © 2025 Sandicor.
Asking Price: $785,000 |
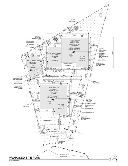
5727 Enfield, Encino CA 91316
Community: ENC - Encino
This Single Family Residence property was built in 1949 and is priced at $785,000. Please see the additional details below.
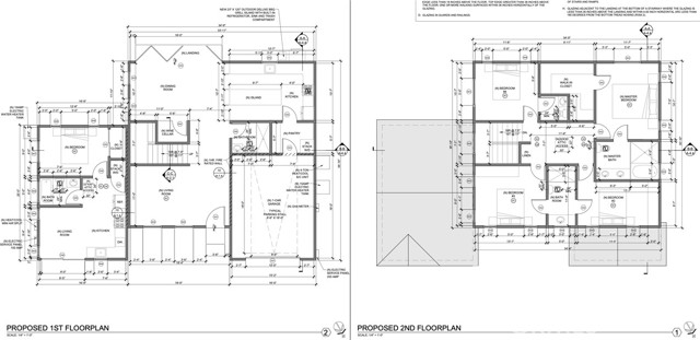
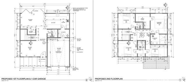
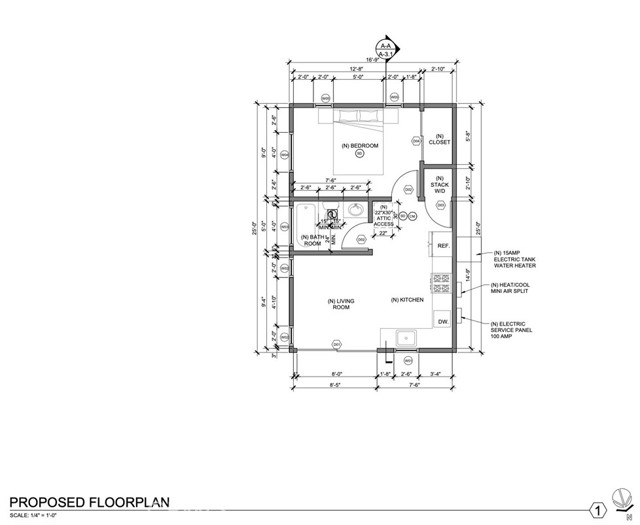
Calling all developers and investors—this is a rare, shovel-ready opportunity at 5725 Enfield Ave, featuring a flat 9,549 sq ft lot already subdivided into two parcels with approved plans to build a total of four units. Parcel A (5725 N Enfield Ave) offers approved plans for a 4-bedroom, 3.5-bath single-family home with approximately 1,992 sq ft and a 1-car attached garage, along with a separately permitted detached ADU at 5725 ½ N Enfield Ave featuring 1 bedroom, 1 bathroom, and 417 sq ft on a 4,384 sq ft lot. Parcel B (5727 Enfield Ave) is a vacant lot with approved plans for another 4-bedroom, 3.5-bath single-family residence of approximately 1,992 sq ft with a 1-car attached garage, plus an attached 1-bedroom, 1-bath ADU at 5727½ N Enfield Ave, totaling 5,151 sq ft. This fully entitled project allows a developer to skip the lengthy approval process and move straight into construction, offering excellent upside through new construction, ADU income potential, or resale, making it an exceptional investment in an established Valley neighborhood. This property will be sold with 5725 Enfield Ave. to one buyer - must purchase both parcels.











