Listing provided courtesy of Steven Russak of Union Home Financial. Last updated 2026-03-01 09:19:25.000000. Listing information © 2025 Sandicor.
Asking Price: $989,000 |
5060 Campo, Los Angeles CA 91364
Community: WHLL - Woodland Hills
This Single Family Residence property was built in 1964 and is priced at $989,000. Please see the additional details below.
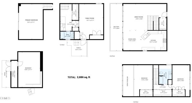
Spacious Custom Chalet in Prime South of the Boulevard Woodland Hills! This is truly a 'See to Believe' property, priced far below market as it awaits your cosmetic touches and personal vision. Originally built in 1964 with major additions and upgrades completed in 1990 (plans available for review), this one-of-a-kind home offers an incredible opportunity you won't want to miss.Nestled among lush greenery, you'll feel like you're living in a private mountain retreat--yet Warner Center is just down the street. The home welcomes you with an expansive open floor plan featuring dramatic floor-to-ceiling windows that capture sweeping views and fill the space with natural light. High open-beam ceilings and hardwood floors create warmth and architectural character throughout.The large kitchen with skylights flows seamlessly into the Great Room, making it ideal for entertaining. The massive primary suite boasts soaring ceilings and a private deck with spectacular views, your own peaceful escape. A spacious family room with inlaid brick and wood detailing offers a separate entrance and direct access to the backyard, perfect for guests, extended family, or flexible living arrangements.Additional highlights include abundant storage space with a room below the home, plus a lush, private wooded backyard complete with expansive custom decking--ideal for relaxing or hosting gatherings under the trees.This is a major opportunity, you could not build this home for this price today. Bring your ideas and transform this extraordinary chalet into your dream home!




































































