Listing provided courtesy of Hector Padilla of Hometown REALTORS, Padilla. Last updated 2026-03-01 09:19:25.000000. Listing information © 2025 Sandicor.
Asking Price: $1,399,000 |
1832 Ashley Ave, Chula Vista CA 91913
Community: 91913 - Chula Vista
This Single Family Residence property was built in 2020 and is priced at $1,399,000. Please see the additional details below.
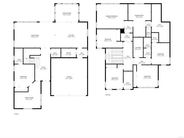
Montecito Village Upgraded Multigenerational Home With 6 Bedrooms and 4.5 Baths! Two Primary Suites, One Downstairs And One Upstairs. Downstairs Primary Is Connected To What Could Easily Be 7th Bedroom, Currently Being Used As Living Room/Den Ideal For Extended Family, Guests, Maid Quarters. Tax Rolls Show 5BR 3.5BA, Seller Paid Builder To Add Bedroom/Bath. Three of the 6 Bedrooms Have Their Own Full Bath. Upgraded, Modern Flooring Upstairs and Downstairs. Upstairs Primary Bath Has Free Standing Tub With Extra Large Two Person Shower With Floor To Ceiling Tile/Stone. Extra Large Walk-In Closet. Solar To Be Paid Off At Close of Escrow. Backyard Has Above Ground Lap Pool For Exercise And/Or Lounge and California Room With Built In Electric Fireplace. Low HOA that includes Private Community Pool(a few houses down), Clubhouse, Gym and Much More. Many More Upgraded And EV Charging Available For Your Electric Vehicle!



































