Listing provided courtesy of Dave Martines of Paramount Properties. Last updated 2026-02-28 09:21:34.000000. Listing information © 2025 Sandicor.
Asking Price: $950,000 |
2045 Pine, Los Osos CA 93402
Community: OSOS - Los Osos
This property was built in 0 and is priced at $950,000. Please see the additional details below.
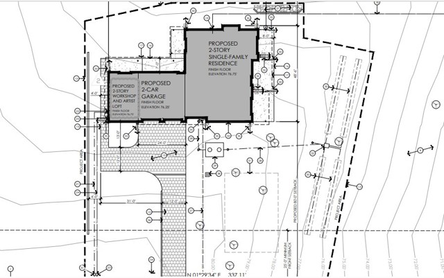
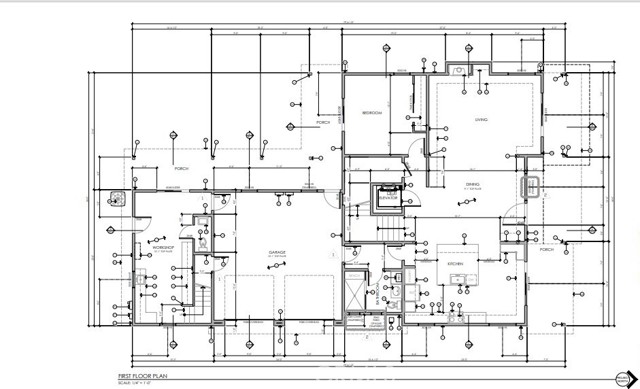
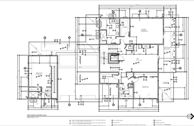
PLANS AND PERMITS ISSUED AND PAID FOR! Ready to build now! Big ocean views from this rare two-acre lot. CAN BE SPLIT INTO EIGHT OR MORE LOTS AS PER COUNTY GUIDLINES. The custom 3400 sq ft home plans are approved, all fees are paid, and it's ready to build today! Plans are included with this rare opportunity to build your dream home, at this prime Los Osos location. Two water allocations for more improvements. Can easily be split into eight lots or more as per County Guidelines. Horses are allowed on this property. Conveniently located near all shopping and services. This lot is unique, and ready for an owner who wants a custom home approved and ready to build now! This rare gem offers 2 acres of prime land just blocks away from the tranquil back-bay and inlets of Cuesta By The Sea. $220K in PAID fees, permits, and approved plans are included. And with two (2) water allocations, you can embark on your construction journey today!























