Listing provided courtesy of Gary Keshishyan of Pinnacle Estate Properties. Last updated 2026-02-27 09:11:31.000000. Listing information © 2025 Sandicor.
Asking Price: $2,700,000 |
7010 Lennox, Van Nuys CA 91405
Community: VN - Van Nuys
This Triplex property was built in 1988 and is priced at $2,700,000. Please see the additional details below.
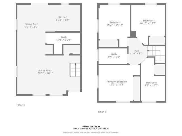
Discover modern living in this beautifully renovated 3 Units Building. One Unit has 3-bedrooms, 2.5-bathrooms and Two units have 4bedrooms 2 baths, built in 1988 ideally situated behind a gate. Esch unit spanning 1,360 sq ft, these spacious units features brand-new appliances, stylish new flooring, and energy-efficient windows throughout. All bathrooms have been tastefully remodeled with contemporary finishes, while new closet doors add a touch of sophistication and functionality and brand-new central heating and air conditioning. Just minutes from shopping, dining, and everyday essentials. This move-in ready unit blends style, comfort, and location—don’t miss out! Full description coming soon.




















































