Listing provided courtesy of Elia Maalouf of Equity Union. Last updated 2026-04-29 08:25:31.000000. Listing information © 2026 Sandicor.
Asking Price: $1,349,000 |
11290 Ivy, Los Angeles CA 90064
Community: C13 - Palms - Mar Vista
This Single Family Residence property was built in 1925 and is priced at $1,349,000. Please see the additional details below.
Charming Spanish-Style Home with Permitted ADU in Prime West Los Angeles
Welcome to this beautifully maintained Spanish-style residence ideally located in the heart of West Los Angeles near Mar Vista, just ½ mile from Santa Monica Airport and minutes from the 405 and 10 freeways.
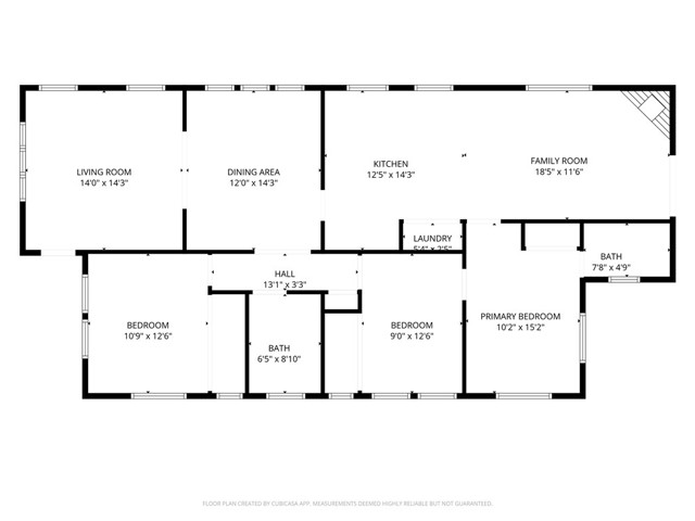
This home blends timeless character with thoughtful modern upgrades. Offering 4 bedrooms, 3 bathrooms, and approximately 1,942 sq ft of livable space. The main house consist of 3 bedrooms 2 full bathrooms with 1466 sqft. It features laminate flooring, a decorative fireplace, and a spacious living room that flows effortlessly into a dedicated dining area—perfect for both everyday comfort and entertaining.
The inviting eat-in kitchen is equipped with stainless steel appliances including a refrigerator, stove, and dishwasher, along with a washer and dryer conveniently tucked into a closet. The kitchen also provides direct access to the backyard, creating an easy indoor-outdoor lifestyle.
Additional highlights include newer central A/C and heating, double-pane windows, newer 200-amp electrical panel, and newer water heater.
Step outside to a private backyard ideal for gatherings, complemented by a single-car garage and an extended driveway with plenty of additional parking.
Adding exceptional value is a permitted 1 bedroom 1 full bathroom 476 sqft ADU, spacious living room and a full kitchen with a fridge and stove, making this property an outstanding opportunity for rental income, guest accommodations, or an in-law suite.
Ideally located just 10 minutes from the Santa Monica Pier and 3rd Street Promenade, and approximately 30 minutes to Downtown LA, this is a rare chance to own a versatile, income-producing home in one of the Westside’s most desirable neighborhoods.
ADU Permits and certificate of Occupancy will be provided before COE




















































