Listing provided courtesy of Jennifer Robertson of Toll Brothers Real Estate, Inc. Last updated 2026-02-26 09:18:00.000000. Listing information © 2025 Sandicor.
Asking Price: $1,558,000 |
108 Palisades, Irvine CA 92618
Community: GP - Great Park
This Condominium property was built in 2026 and is priced at $1,558,000. Please see the additional details below.
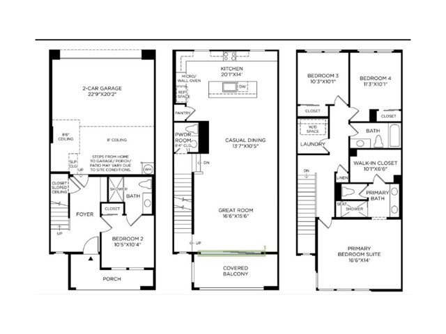
Welcome to the Elm Collection, a new community located in Great Park, which is close to Great Park Ice and the Great Park Sports. Homesite 64 is a new construction home that is situated in an interior location within the community. The Sorrel floorplan features 4 bedrooms, with 3.5 bathrooms, and is 2132 sq. ft, with a 2-car garage. Upon entering the home, you are welcomed by an expansive foyer and secondary bedroom with a full bath on the first level. On the second level, you will see a chef inspired kitchen complete with generous counterspace, ample cabinetry, and a pantry with an open floor plan. Sliding doors on the second level open to a large, covered balcony. The third level offers a spacious primary suite with a luxurious ensuite bath and walk in closet and dual vanities. There are two additional well sized bedrooms, a full secondary bath, and a dedicated laundry room. Located in a desirable community close to shopping, dining, and the 5 freeway. Homesite 64 is under construction and has an estimated completion of Fall 2026. Photos provided are of the renderings for the Sorrel floor plan.












