Listing provided courtesy of Ashley Stewart of Idyllwild Realty. Last updated 2026-04-29 08:25:31.000000. Listing information © 2026 Sandicor.
Asking Price: $634,999 |
24490 Upper Rim Rock, Idyllwild CA 92549
Community: 222 - Idyllwild
This Single Family Residence property was built in 1967 and is priced at $634,999. Please see the additional details below.
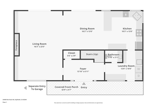
Tucked along the creek, this spacious 3 bedroom, 2.5 bathroom home offers 2,112 sq ft of comfortable mountain living with thoughtful upgrades throughout. The main level welcomes you with a bright living room featuring a cozy fireplace and sliding doors that open to a deck overlooking the tranquil creek -- perfect for relaxing or entertaining. The dining area also provides deck access, creating seamless indoor-outdoor flow, while the kitchen, laundry area, and convenient half bath complete the main floor.Upstairs, the primary suite is a true retreat, featuring a charming wood-burning stove and a private full bathroom. Two oversized guest bedrooms offer generous space for family or visitors and share a large 3/4 hall bathroom.Modern comforts include central heat and A/C downstairs, plus a Tesla battery backup system and electric car charger located in the attached 2-car garage. The garage also provides access to a lower, tucked-away deck and workshop area -- ideal for hobbies, storage, or projects.A covered front patio enhances the home's curb appeal and provides a welcoming entry into this peaceful creekside property that blends nature, comfort, and functionality.











































