Listing provided courtesy of Richard Shannon of Century 21 Masters. Last updated 2026-04-29 08:25:31.000000. Listing information © 2026 Sandicor.
Asking Price: $1,650,000 |
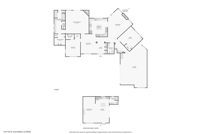
110 11th, Paso Robles CA 93446
Community: PSOR - Paso Robles
This Single Family Residence property was built in 2009 and is priced at $1,650,000. Please see the additional details below.
Located on the desirable West Side of Paso Robles, this custom-built 2010 Craftsman home blends thoughtful design, quality construction, and exceptional walkability just moments from downtown restaurants, wine bars, and City Park. Built with 6-inch thick interior and exterior walls, the residence offers enhanced durability, efficiency, and comfort.
Inside the 2,600± sq ft main home, hardwood floors flow through the kitchen, living room, family room, and hallways, while Milgard dual-pane windows with craftsman trim bring abundant natural light. Energy-conscious upgrades include owned solar, fire sprinkler system, tankless Rinnai water heater, and fire and home security systems.
The chef’s kitchen showcases custom Morro Bay Cabinets, granite countertops and backsplash, a butcher block island workstation, and an impressive 23" x 104" breakfast bar. Premium appliances include two dishwashers, two ovens, refrigerator, built-in microwave, wine cooler, and trash compactor, making the space ideal for entertaining and everyday living.
The primary suite retreat features a fireplace, private patio access, and a cathedral-style sunken ceiling. The spa-inspired en-suite bathroom offers a 10-foot dual vanity with seated personal vanity area. The walk-in closet features built in organization systems and is plumbed for a stacking washer and dryer inside.
Additional highlights include a 650 ± sq ft studio ADU with full kitchen and ¾ bath, providing flexible options for guests, rental income, or multi-generational living.
Outdoor living is equally impressive with a back patio featuring a wood-burning fireplace, multiple seating areas, traditional spa, and swim spa, plus convenient RV parking.
A rare West Side opportunity combining craftsmanship, efficiency, and versatile living spaces in a prime Paso Robles location.




































































