Listing provided courtesy of Angela Brown of First Team Real Estate. Last updated 2026-03-03 09:13:31.000000. Listing information © 2025 Sandicor.
Asking Price: $730,000 |
9545 Calle La Cuesta, Riverside CA 92503
Community: 252 - Riverside
This Single Family Residence property was built in 1978 and is priced at $730,000. Please see the additional details below.
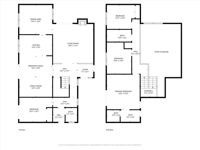
Nestled on a quiet cul-de-sac in a desirable neighborhood, this spacious two-story home offers the perfect blend of comfort, functionality, and future potential. Step inside to a welcoming living room featuring a vaulted ceiling and an impressive floor-to-ceiling brick fireplace that instantly becomes the heart of the home. Natural light pours in through patio doors that open to the backyard, creating a seamless indoor-outdoor flow ideal for entertaining or relaxing evenings at home. The thoughtfully designed floor plan includes 4 bedrooms and 3 bathrooms. The downstairs bedroom and full bath is perfect for guests, multi-generational living, or a private office. It features its own sliding glass door with direct backyard access, offering added flexibility and convenience. The large kitchen is truly the hub of the home, complete with recessed lighting, abundant counter space, and a countertop bar that opens to the family room so you can cook, host, and stay connected all at once. A separate formal dining room provides an elegant space for gatherings, while the adjoining family room also offers sliding doors to the backyard. Upstairs, the spacious primary suite serves as a relaxing retreat, highlighted by a vaulted ceiling that enhances the sense of space and light and with a generous walk-in closet attached. Additional highlights include artificial grass in the front yard for low-maintenance curb appeal, a three-car garage, and an oversized driveway offering plenty of parking and storage. Bonus - No HOA and No Mello-Roos! With its versatile layout, generous living spaces, and peaceful cul-de-sac setting, this home is ready to welcome its next chapter. Home is being sold As-Is.



































































