Listing provided courtesy of Jarrett Decoff of Real Brokerage Technologies. Last updated 2026-04-04 08:17:20.000000. Listing information © 2026 Sandicor.
Asking Price: $769,999 |
500 Middlefield #41, Mountain View CA 94043
Community: 699 - Not Defined
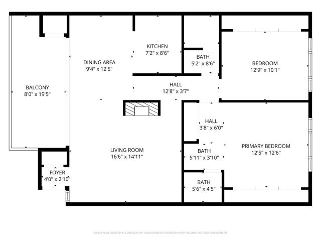
This Condominium property was built in 1971 and is priced at $769,999. Please see the additional details below.
Welcome to this beautifully updated 2-bedroom, 2-bath condo in the heart of Mountain View, offering approximately 998 sq ft of comfortable living space. This light-filled unit features a refreshed kitchen with updated appliances, fresh interior paint, and popcorn ceilings removed for a modern, clean finish. The spacious layout includes carpeted living areas and large sliding glass doors that open to a generous private balcony overlooking the community pool and clubhouse - perfect for relaxing or entertaining. Both full bathrooms are well-appointed, and the home includes one assigned parking space for convenience. Ideally located just minutes from Google and other major tech campuses, this home offers unbeatable access to downtown Mountain View, Caltrain, dining, and shopping. Commuters will appreciate the close proximity to Highways 101 and 85, making travel throughout Silicon Valley seamless. Located within the highly regarded Mountain View Whisman School District and Mountain View-Los Altos Union High School District. A fantastic opportunity for homeowners or investors seeking comfort, convenience, and a prime location.







































