Listing provided courtesy of Karen Fangfang Xu of Century 21 Anew Realty. Last updated 2026-04-17 08:23:31.000000. Listing information © 2026 Sandicor.
Asking Price: $1,745,000 |
15540 Armsby, Morgan Hill CA 95037
Community: 699 - Not Defined
This Single Family Residence property was built in 1973 and is priced at $1,745,000. Please see the additional details below.
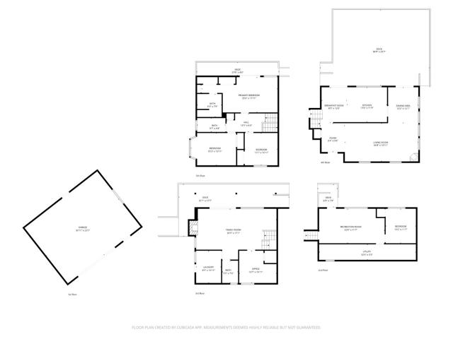
Tucked into a private canyon in the foothills of Morgan Hill, this beautifully upgraded home offers the perfect blend of space, privacy, and quintessential California indoor-outdoor living. Spanning 2,812 square feet of living space on an expansive 1.8-acre lot, the home features 5 bedrooms or a flexible 4-bedroom plus office layout, along with 3 full baths. Filled with natural light and framed by serene hillside views, every space feels like a tranquil escape. Thoughtfully designed for everyday living and effortless entertaining, the property features an upgraded view deck, owned solar, a full indoor-outdoor audio system and 2Gbit fiber optic internet service. Equipped with a pellet stove, a wood-burning fireplace, and dual HVAC/heat pump systems, the home offers cozy warmth in winter and comfort in the summer. The expansive grounds further elevate the experience, featuring beautifully landscaped terraces, full deer fencing, and a separate enclosed playground area, creating a rare and truly special retreat.






































