Listing provided courtesy of Cynthia Kerr of Williams Homes Inc. Last updated 2026-04-18 08:21:11.000000. Listing information © 2026 Sandicor.
Asking Price: $764,990 |
555 Via Vallarta, Camarillo CA 93012
Community: VC41 - Camarillo Central
This Condominium property was built in 2026 and is priced at $764,990. Please see the additional details below.
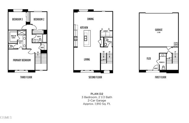
New Construction! Quick Move-in! Welcome to Palmera in Camarillo--modern townhome living designed for efficiency, comfort, and convenience.This three-story home features an open-concept layout, flexible living spaces, and contemporary finishes that support both daily living and work-from-home needs. Private areas are thoughtfully separated for functionality and quiet.Enjoy a low-maintenance lifestyle with no yard upkeep--freeing up your time while keeping your living environment clean and manageable.Located just minutes from the freeway, shopping, dining, and everyday essentials, Palmera offers easy access without the congestion of denser urban areas.A smart option for those seeking a well-designed home, predictable living, and a connected, comfortable community.Close to everything. Far from the chaos. Palmera has no Mello Roos and a low Ventura County tax rate.


























