Listing provided courtesy of Malena Boetel of Serhant California Inc. Last updated 2026-04-18 08:11:32.000000. Listing information © 2026 Sandicor.
Asking Price: $2,275,000 |
785 Lemon, Vista CA 92084
Community: 92084 - Vista
This Quadruplex property was built in 2025 and is priced at $2,275,000. Please see the additional details below.
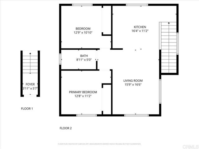
Built in 2025, this low-maintenance, 3/4 leased fourplex offers immediate cash flow with long-term upside. The property generates $147,000/year in gross income with separately metered gas & electric, owned solar, and all new systems and finishes - ideal for 1031 exchange buyer seeking stabilized returns with extremely low expenses or residential buyer in the market to house hack. Each unit is thoughtfully designed to attract high-quality tenants, featuring quartz countertops, stainless steel appliances, in-unit LG washer/dryers, Innovair mini splits, tankless water heaters, and durable vinyl oak flooring. Unit mix includes a highly desirable 3 bed/2 bath owner’s unit option, and three 2 bed/1 bath units with varying modern kitchen designs. New roof, foundation, plumbing, electric, windows, landscaping - all new inside and out! Located near Vista’s growing dining and entertainment, including Moonlight Amphitheatre and Alta Vista Botanical Gardens, with easy freeway access to the coast. Rents: Unit 1 $3,800 (pro forma) | Unit 2 $2,900 | Unit 3 $2,800 | Unit 4 $2,800









































