Listing provided courtesy of Tracey Hoffman of RESOURCE REAL ESTATE. Last updated 2026-04-24 08:16:24.000000. Listing information © 2026 Sandicor.
Asking Price: $509,999 |
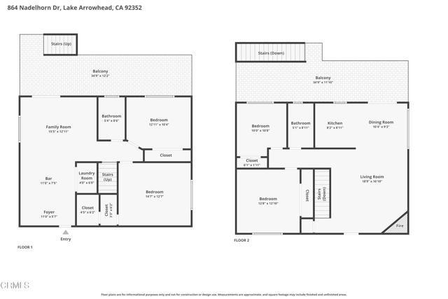
864 Nadelhorn, Lake Arrowhead CA 92352
Community:
This Single Family Residence property was built in 1978 and is priced at $509,999. Please see the additional details below.
Welcome to a charming and quiet mountain getaway for your family vacations, short-term rental opportunities or investment potential. Lake rights, peek-a-boo lake views, stunning ridgeline views, flexible layout and plenty of parking--this is the one you've been waiting for! A rare and cozy four bedroom cabin nestled in beautiful Arrowhead Woods, the layout features two bedrooms and one full bathroom on each level, making it ideal for dual living, guest accommodations, or extended stays. Sleeps nine people comfortably in beds--perfect for large or multiple families. Even has a twin-over-full bunk bed for the kids!Each floor has plenty of natural light streaming in from large sliding doors and windows that look out over mountain views. Kitchen features newer fridge, stove and dishwasher. Separate entrances to each level create an exciting opportunity for flexible, income-producing potential--perfect for investors looking to maximize the property. Downstairs, you'll find a built-in bar and additional entertaining space, adding even more value and appeal for hosting and guests. Home is being offered fully furnished, making it truly move-in ready--just bring your bags and start enjoying. A turnkey opportunity with immediate usability--ideal for those looking to start enjoying or generating value right away.The recently reinforced, upgraded and waterproofed decks are perfectly positioned to soak in the scenery, whether you're enjoying your morning coffee or unwinding at sunset. Other recent upgrades include: completely rebuilt electrical panel, complete renovation of attic and crawlspace with rodent-proofing and brand new R-38 insulation and foundation stabilization with carbon fiber concrete stitching. Located just minutes from the Village and the lake, in one of Lake Arrowhead Woods' most desirable neighborhoods. High-demand location for both full-time living and vacation stays, with close proximity to dining, shopping, and year-round recreation. Whether you're looking for a full-time home, weekend escape, or investment opportunity, this property offers a rare combination of lifestyle and versatility!





























































